
ДАЧА/ДОМ Киевское/Калужское шоссе 90 км от МКАД участок 6 соток земли СНТ Русское поле Боровский район рядом д. Городня ДАЧА НАПРЯМУЮ ОТ ЗАСТРОЙЩИКА. . Вы будете себя чувствовать комфортно в двухэтажном благоустроенном уютном доме (122 м2) приобретя его в собственность у нас , так как условия для жизни мало чем отличаются от городских.
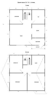
Дом 7,5*7,5 Б Р У С два этажа общей площадью от 122м2. дом брус 150*150, отделка внутри имитация бруса, снаружи сайдинг + утеплитель (15 см), двери межкомнатные деревянные ламенированные, наружная железная, окна пластиковые 2-х или 3-х камерные, крыша металлочерепица, фундамент ленточный армированный (1.20 см в глубину) на песчаной подушке. Дом: на первом этаже - зал студия, кухня (9кв), прихожая и санузел(9 кв м ) , на втором - 3 спальни по 18м2, балкон и холл. Дом готов к зимнему проживанию Все коммуникации проведены в доме: Водопровод (колодец или скважина) , в доме канализация (септик) электричество - без ограничения мощности. Дорога до дачи щебень. Дом отапливается от электрических конвекторов которые установлены в каждой комнате по окном. Дача огорожена металлическим забором. Имеется стоянка для автомобиля , садоводческое товарищество охраняется, круглогодичный подъезд, имеется магазин в 400м круглый год, палатка летом.
| Добавлено: | 04.05.2012 |
| Дата окончания: | срок размещения не ограничен |
| Регион: | Москва |
| Цена: | 2100000 |
| Автор: | Женя |
| Телефон: | 89038103540 |